Espace propriétaire
fr

Votre recherche

Harfleur (76700)

1 pièces - 52,48 m²

APPARTEMENT TYPE 2 A RENOVER EN INTEGRALITE - CENTRE HARFLEUR

64 200 €
Ref : 1197-LCN
Découvrir le bien

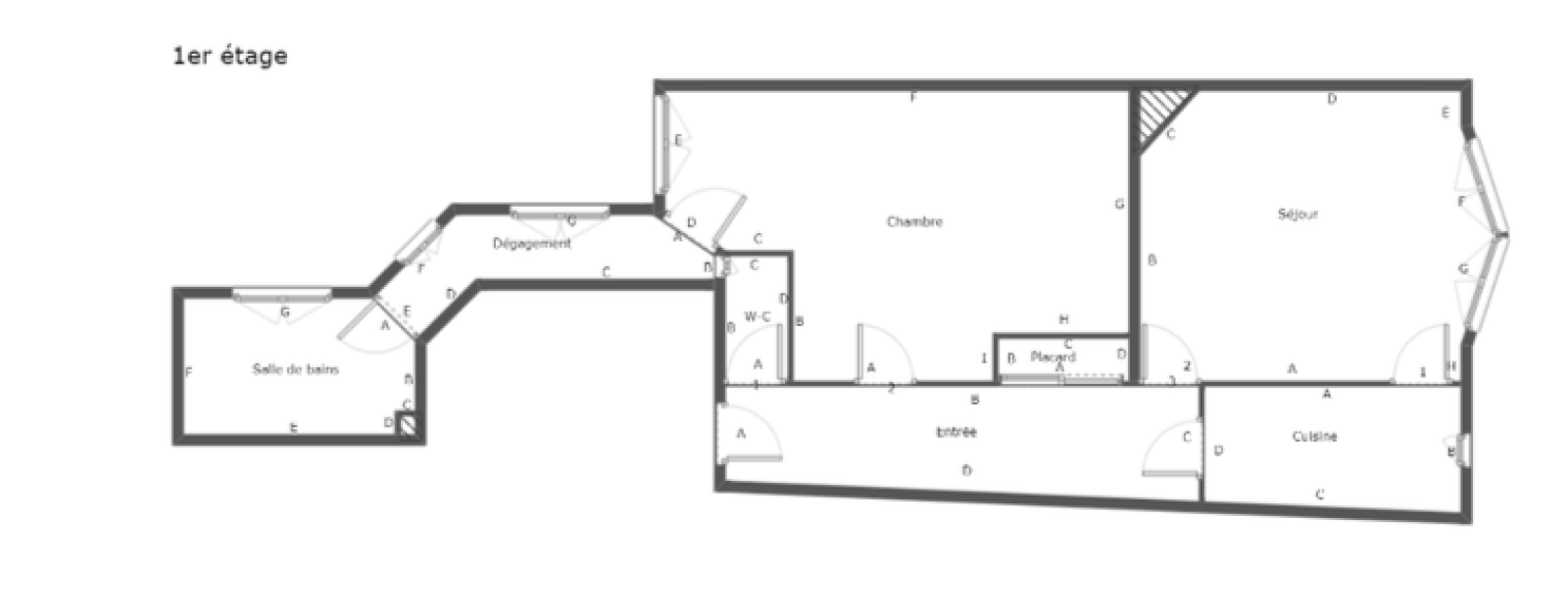
Nous vous proposons cet appartement de Type 2 d’une superficie d’environ 53 m², situé au 1er étage d’une copropriété sans ascenseur.

Ce bien, à rénover entièrement, offre un fort potentiel de valorisation.
Il se compose actuellement d'une pièce principale, un espace nuit, et une pièce d'eau. 

L’ensemble de l’appartement nécessite une RENOVATION COMPLETE, laissant l'opportunité de repenser entièrement les volumes et les aménagements.

Idéal pour un investissement locatif ou un premier achat, cet appartement représente une opportunité à saisir pour les profils en recherche de travaux.

TRAD_ZEPHYR_Caracteristique TRAD_ZEPHYR_Valeurs
Code postal 76700
Surface loi Carrez (m²) 52,48 m²
Nombre de pièces 1
Etage 1
Ascenseur NON
TRAD_ZEPHYR_Caracteristique TRAD_ZEPHYR_Valeurs
Mode de chauffage Electrique
Type de chauffage Autre
Format de chauffage Individuel
Balcon NON
Terrasse NON
Cave NON
Année de construction 1949
Quartier HARFLEUR
TRAD_ZEPHYR_Caracteristique TRAD_ZEPHYR_Valeurs
Copropriété OUI
Lot n° 8
nombre de lots 13
Quote Part annuelle des charges 120 €
plan de sauvegarde NON
statut du syndic pas de procédure en cours
TRAD_ZEPHYR_Caracteristique TRAD_ZEPHYR_Valeurs
Prix de vente honoraires TTC inclus 64 200 €
Prix de vente honoraires TTC exclus 60 000 €
Honoraires TTC à la charge acquéreur 7 %
Charges 10 €
Taxe foncière annuelle 790 €
DPE GES
Contacter pour ce bien
L'agence
Téléphone 0232748686
Adresse
23 Quai George V 76600 Le Havre

* Champ obligatoire

Les informations recueillies sur ce formulaire sont enregistrées dans un fichier informatisé par La Boite Immo agissant comme Sous-traitant du traitement pour la gestion de la clientèle/prospects de l'Agence / du Réseau qui reste Responsable du Traitement de vos Données personnelles. La base légale du traitement repose sur l'intérêt légitime de l'Agence / du Réseau. Elles sont conservées jusqu'à demande de suppression et sont destinées à l'Agence / au Réseau. Conformément à la loi « informatique et libertés », vous disposez des droits d’accès, de rectification, d’effacement, d’opposition, de limitation et de portabilité de vos données. Vous pouvez retirer votre consentement à tout moment en contactant directement l’Agence / Le Réseau. Consultez le site https://cnil.fr/fr pour plus d’informations sur vos droits. Si vous estimez, après avoir contacté l'Agence / le Réseau, que vos droits « Informatique et Libertés » ne sont pas respectés, vous pouvez adresser une réclamation à la CNIL. Nous vous informons de l’existence de la liste d'opposition au démarchage téléphonique « Bloctel », sur laquelle vous pouvez vous inscrire ici : https://www.bloctel.gouv.fr Dans le cadre de la protection des Données personnelles, nous vous invitons à ne pas inscrire de Données sensibles dans le champ de saisie libre.
Ce site est protégé par reCAPTCHA, les Politiques de Confidentialité et les Conditions d'Utilisation de Google s'appliquent.

Découvrir nos outils